DESCRIPCIÓN DEL PROYECTO PUERTA ORIENTE
PUERTA ORIENTE® se desarrollará sobre un predio con una superficie de 27,526.37m2 en la que se encuentran los accesos de la estación San Lázaro de las Líneas 1 y B del Sistema de Transporte Colectivo Metro.

OBJETIVO
UBICACIÓN DEL PROYECTO
Al centro-oriente de la Ciudad de México, en Avenida Ing. Eduardo Molina No.39, colonia 7 de julio, Alcaldía Venustiano Carranza, C.P.15390, Ciudad de México. Entre la calle Artilleros y la Calzada Ignacio Zaragoza.

ÁREAS DEL PROYECTO
Área de Transferencia Modal (ATM): es el área en el CETRAM en la cual se llevarán a cabo las maniobras (incluidos el acceso y circulación) de vehículos destinados al servicio público de transporte de pasajeros y ascenso y descenso de usuarios de transporte público.
Área Comercial y de Servicios (ACS): es el área dentro del inmueble para el ejercicio de las actividades comerciales, entretenimiento y de servicios.
Área Socio Cultural (ASC): es el área dentro del inmueble en la que se implementarán actividades culturales, deportivas, recreativas y de atención de contingencias.


ÁREA DE TRANSFERENCIA MODAL (ATM)
Las circulaciones peatonales asegurarán el confort de los usuarios con destino o transferencia entre la Terminal de Autobuses de Pasajeros de Oriente (TAPO), el ATM, las Líneas de Metro y Metrobús.
Las entradas vehiculares al ATM están ordenadas sobre la calle de Artilleros para las rutas provenientes de dicha calle; las rutas que provienen de Av. Eduardo Molina acceden en la esquina con calle Artilleros.
Las salidas del ATM conducen a la calle Artilleros, dicha calle provee un flujo en tres direcciones por ser cruce semaforizado y donde se planean acciones adicionales ordenadas por SEMOVI para el mejor funcionamiento del cruce.
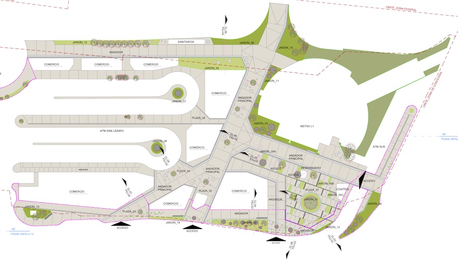
PLANTA BAJA

Imagen proporcionada por el Promovente.
ÁREA COMERCIAL Y DE SERVICIOS (ACS)
En la Pasarela Norte se ubicarán 16 locales para pequeño comercio; en el Pasillo Principal, 7 locales para mediano comercio y 2 para pequeño comercio, además de los núcleos sanitarios que darán servicio al conjunto.
En el cuerpo poniente, colindante a la Av. Eduardo Molina, se ubicarán 3 locales para mediano comercio y 19 locales para pequeño comercio; destacando que en este cuerpo se alojan tanto la enfermería como locales para equipo eléctrico y la subestación.
En este nivel se encuentra el acceso peatonal del ATM zona sur y la entrada principal. La banqueta de la calle Av. Ignacio Zaragoza tendrá un ancho de 6m a 10m y considera bahías para ascensos y descensos rápidos para usuarios del ATM.

PLANTA ALTA
En el cuerpo poniente, con frente a Av. Eduardo Molina, se ubicará el área de administración del CETRAM, constituida por oficinas administrativas, así como el área de circulaciones verticales y servicios.
El Proyecto considera la implementación de un local para que se ubique un espacio PILARES (Puntos de Innovación, Libertad, Arte, Educación y Saberes).

ÁREA SOCIO CULTURAL (ASC)
Se planea integrar mobiliario urbano que permita la sana convivencia de los usuarios, favoreciendo el espacio para que se convierta en un punto de reunión, iluminado y seguro, que se encuentra cercano a los medios de transporte.


Consiste en la recuperación de la explanada de la estación San Lázaro de la línea 1 del SCT Metro diseñada por el Arq. Félix Candela.
¿SABÍAS QUÉ?

La propuesta arquitectónica plantea un Área de Integración con el Entorno que impulse el mejoramiento integral del espacio público, promoviendo mejoras sustantivas en materia de sustentabilidad, iluminación, seguridad en la vía pública y en el entorno urbano. Tambien se rehabilitarán los andadores peatonales que permiten la interconexión con los diferentes servicios de transporte.
La edificación comprende un nivel bajo nivel de banqueta en donde se encontrarán cisternas para almacenamiento de:
- Agua potable
- Agua pluvial
- Agua tratada
- Planta de Tratamiento de Aguas Residuales
- Protección Contra Incendios
- Cuarto de máquinas

Circulación a cubierto para peatones

OTROS SISTEMAS ASOCIADOS
AL PROYECTO
- Reducir el consumo energético eliminando el uso de aire acondicionado, esto a partir de una orientación y cubiertas que permitan el mejoramiento de la ventilación natural.
- Implementación de componentes eléctricos de alta eficiencia que garantizan el ahorro de energía eléctrica.
- Luminarias de bajo consumo energético.

Las áreas destinadas para biciestacionamiento se encuentran claramente visibles, no obstruyen la circulación peatonal y dispone de racks para alojar hasta 104 bicicletas.
